Newcaslte University: Conference & Learning Center Design Team:
Más información en:
http://www.sheppardrobson.com/news/article/sheppard-robson-wins-major-project-at-newcastle-university
+info: http://snack.to/bh3a7qyf
New Victoria:
Cost: £154m
Oficina de 8 plantas 150.000 sq ft y dos torres residenciales de 22 plantas cada una, consiguiendo 475 apartamentos.
+ info: http://snack.to/b7tj2mik
Emplazamiento del proyecto:
Algunos bocetos de la oficina:

Va cogiendo forma el edificio:
Algunos bocetos de las torres residenciales:
Algunas pruebas visuales:
Finalmente se queda así:
Sovereign Square Office Building, Leeds:
Cost: £12m. 2,230m2
A new development is promoted close to the Leeds Train Station regenerating an empty central area in the city. The new building provides a basement car park, retail areas on the ground floor and office spaces on the upper floors facing a new projected square.
+info: http://snack.to/bhp5bfsm
Helipad:
Este proyecto fue muy gracioso. Para ser precisos es un proyecto donde mi empresa casi lo hacía como favor, ya que era un "peke" proyecto para lo que estaban acostumbrados, por lo que le dedicaban tiempo cuando sobraba, lo tomaban, lo dejaban y lo retomaban. Debido a que no estaban habituados a este tipo de proyectos lo estaban empezando en Sketchup:
Recuerdo cuando unos de los Partners de la empresa comentó que tenía una reunión al día siguiente y no tenía nada (bueno las imágenes de arriba). Por casualidades de la vida ese mismo día tuvimos una reunión sobre Revit, donde las personas pensaban que es lento y que no sirve para los conceptos. El caso es que recordando la conversación sobre el Helipad, me ofrecí voluntario enseñar de forma practica lo poderoso y rápido que puede ser Revit. Realmente era un desafío, ya que tenía que crear el archivo dese ZERO, pero como me encantan los desafíos pues me puse e intenté sacar lo mejor de mi en el menor tiempo posible. Mezclando, parámetros, matemáticas, complejos componentes que me ayudaron a reducir los tiempos concluí con:
Algunos ejemplos desde Revit a Artlantis:
Algún foto-montaje:
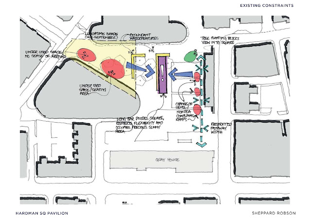
Hardman Square Pavilion:
+ info: http://snack.to/bhc365fj


















































